MAISON DE CHARME À VAUBAN
* * * SOUS COMPROMIS * * *
C'est en plein coeur du quartier très prisé de Vauban que le Café de l'immo vous propose de découvrir un bien rare, confidentiel, alliant élégance et emplacement d'exception.
Nichée dans une impasse au calme, à proximité immédiate des commerces de quartier, écoles et transports, cette maison vous séduira par son cachet et son atmosphère chaleureuse.
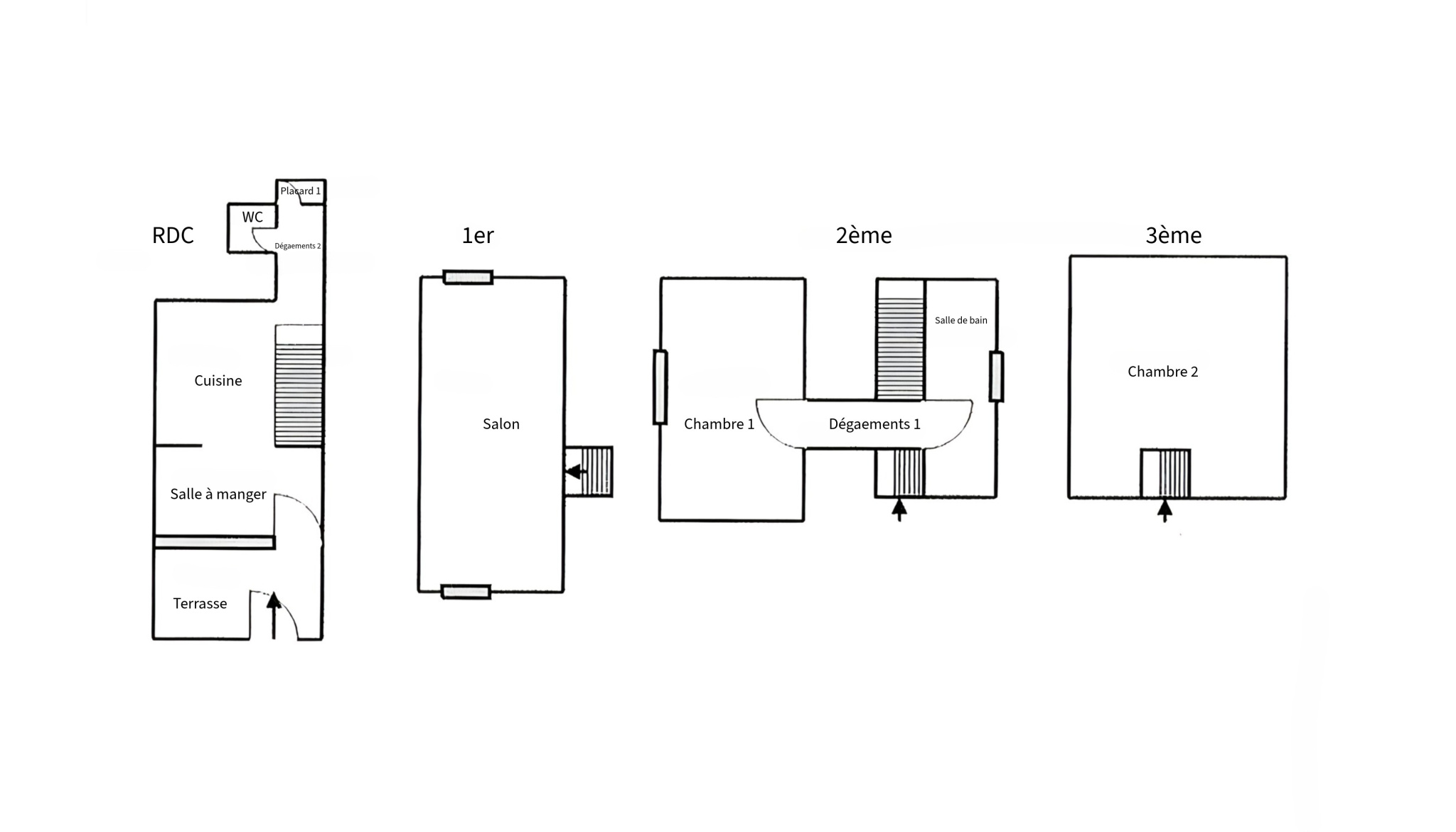
Répartie sur 3 niveaux, la maison de 86m2 a été subtilement rénovée avec des prestations soignées, et chaque espace a été pensé pour vous offrir confort et esthétisme.
Une maison idéale, pour un couple ou une petite famille recherchant le charme de Vauban et la proximité du centre-ville. Un véritable coup de coeur à visiter sans tarder !
Taxe foncière : 1 642 €
(Honoraires charge vendeur)
Consommation
(énergie primaire)
236
kWh/m2/an
Émissions
7
kg CO2/m2/an *
7
kg CO2/m2/an
