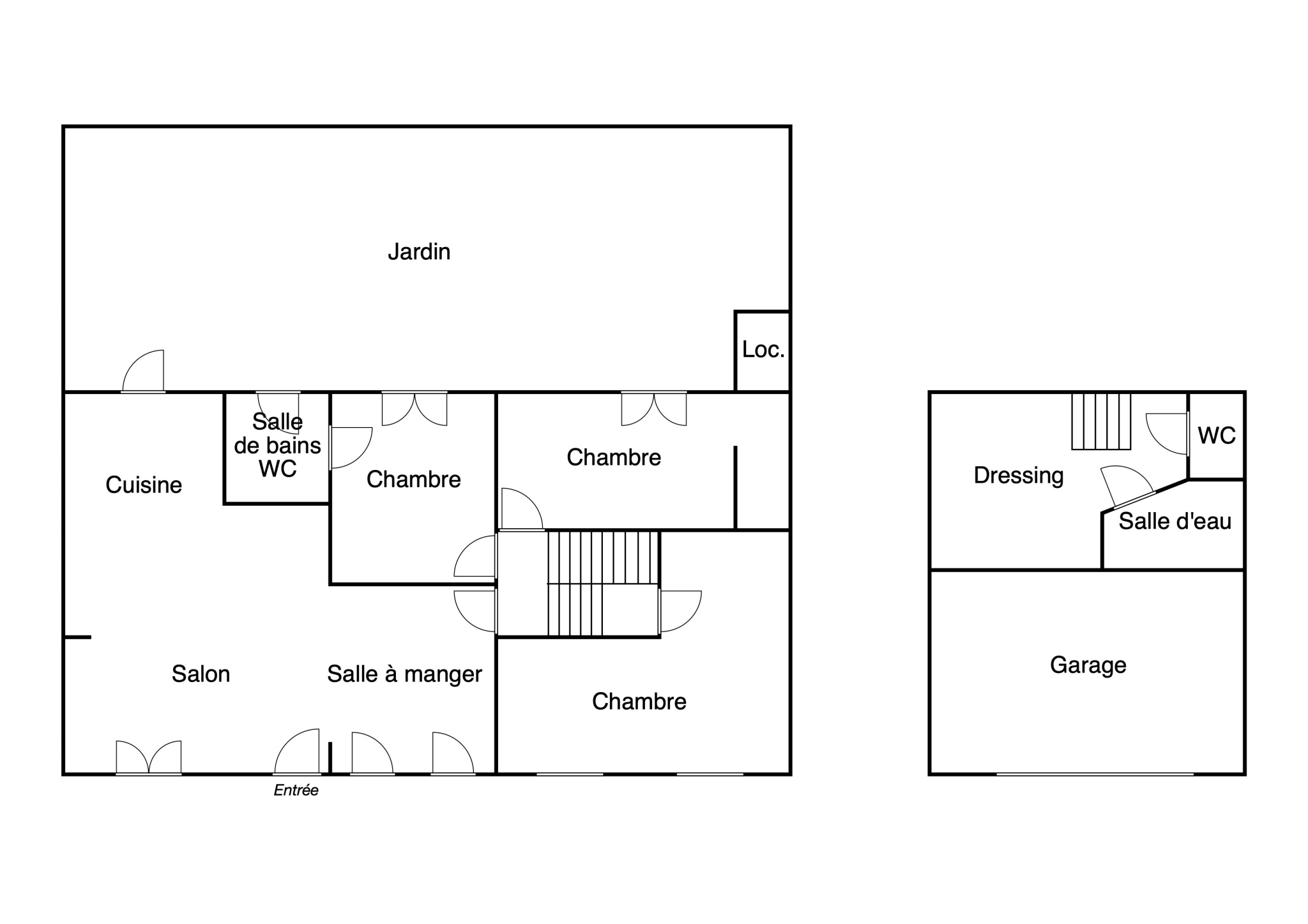
BEAUMONT - MAISON FAMILIALE AVEC PISCINE
C'est dans un environnement résidentiel recherché que le Café de l'immo vous propose de poser vos valises. Situé à quelques minutes du village de Saint Barnabé et proche de toutes commodités, découvrez cette maison de type 4 de 112m2 offrant volumes et luminosité.
Parfaitement pensée pour une la vie de famille, vous serez conquis par sa pièce de vie ouverte sur une cuisine entièrement equipée.
L'espace nuit, quant à lui, offre une grande chambre parentale avec salle d'eau et wc, suivi de 2 chambres avec salle de bain et wc séparé. Vous y trouverez également une buanderie ainsi que de nombreux rangements.
Atout majeur de la maison et à l'abri des regards, vous serez charmés par l'espace extérieur, un jardin accueillant une piscine et plusieurs espaces de détente, idéal pour passer de bons moments en famille ou entre amis.
Un grand garage de 25m2 complète ce bien.
Taxe foncière: 2 200 €
(Honoraires charge vendeur)
Consommation
(énergie primaire)
240
kWh/m2/an
Émissions
7
kg CO2/m2/an *
7
kg CO2/m2/an
