UNE MAISON ENTRE MER ET COLLINES
Le Café de l'immo vous emmène sur les hauteurs du quartier St Henri, visiter cette jolie maison T4 de plain pied d'une surface de 121m2. Installée au bout d'un chemin sur une grande parcelle de 2000 m2, elle propose un panorama incomparable sur la baie de Marseille.
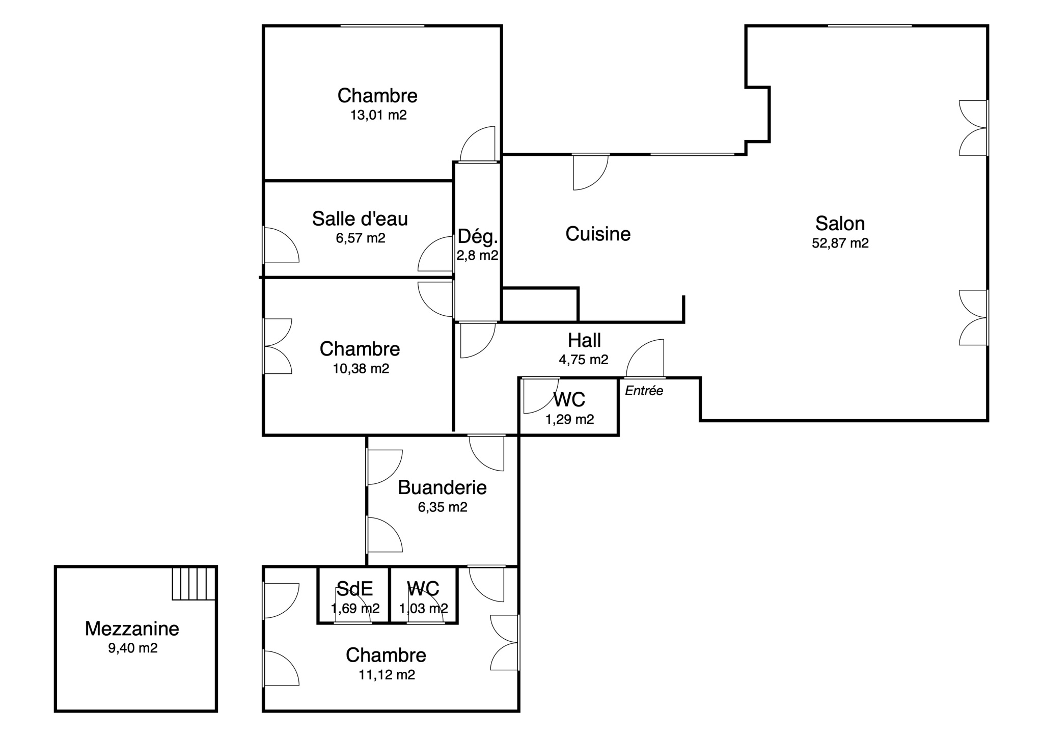
On entre dans la maison par le grand salon-salle à manger ouvert sur la terrasse plein sud, grâce à de grandes baies vitrées. Une vaste pièce tournée sur l'extérieur et traversante, pour profiter à la fois de la vue mer, mais aussi de la vue sur les collines, à l'arrière de la maison. Une cuisine ouverte et équipée, dans le prolongement de cet espace, permet d'imaginer de conviviaux moments en famille ou entre amis.
Côté nuit, deux chambres avec rangement intégrés, séparées par une jolie salle d'eau avec double vasque. La grande chambre donne directement sur la terrasse et bénéficie elle aussi de la vue mer.
En passant par la buanderie, on accède à une dépendance attenante à la maison, un atout très appréciable. Elle se compose d’un espace nuit en mezzanine, d’un petit salon et d’une salle d’eau avec WC. Un ensemble idéal pour un adolescent souhaitant un peu d’indépendance ou pour créer un espace dédié à de la location saisonnière - cette partie de la maison bénéficiant de son entrée indépendante.
L'extérieur de la maison est le véritable atout de ce bien : un coin potager, plusieurs abris de jardin, et surtout une grande terrasse exposée plein sud, véritable prolongement des espaces de vie intérieurs. Depuis cet espace, la vue est tout simplement remarquable : Marseille, la Méditerranée, les îles du Frioul, jusqu’aux Goudes. La piscine, la cuisine d’été au style provençal et les différents espaces pour installer salon de jardin ou grande table permettent de profiter pleinement du terrain. Un WC extérieur vient également compléter les aménagements.
Pour le stationnement, la propriété dispose d’une grande allée pouvant accueillir jusqu’à quatre voitures, ainsi que d’un petit préau parfait pour mettre deux-roues ou vélos à l’abri.
Une charmante maison provençale, lumineuse et parfaitement située, offrant un cadre de vie agréable, proche de la nature, à quelques minutes seulement du centre ville.
Taxe Foncière : 2 515€
(Honoraires charge vendeur)
Consommation
(énergie primaire)
119
kWh/m2/an
Émissions
3
kg CO2/m2/an *
3
kg CO2/m2/an
