LUMINEUX ET PRATIQUE - VAUBAN
* * * VENDU * * *
C'est dans le très recherché quartier Vauban, à quelques encablures de Périer, que le Café de l'Immo vous emmène...
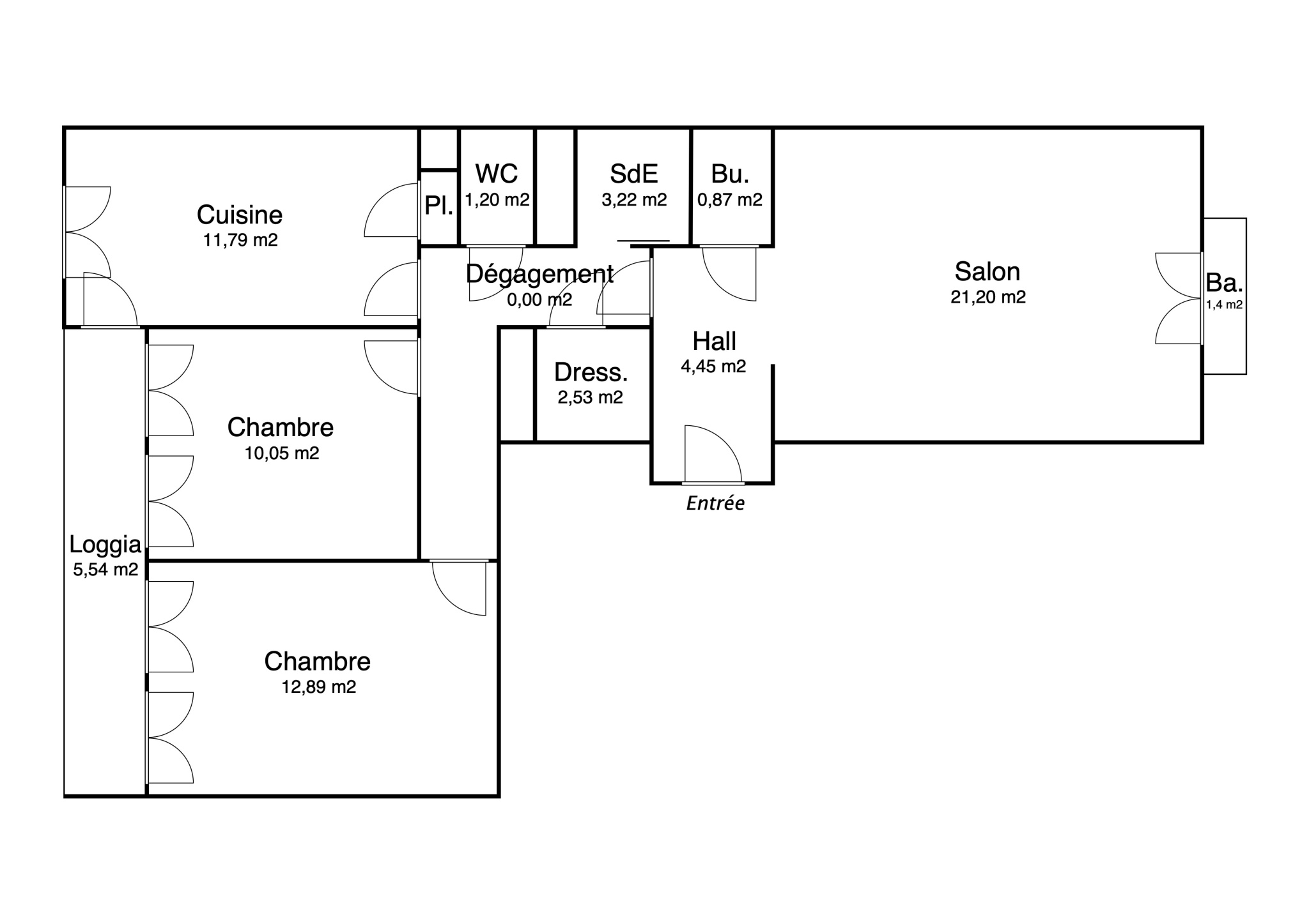
Au sein d'une copropriété semi-récente bien tenue, ce bel appartement de type 3 et ses deux balcons se situe au 2ème étage avec ascenseur. Lumineux et bien agencé, d'une surface totale de 75m2, il est composé comme suit :
Une belle entrée de près de 5m2, qui dessert les différentes parties de l'appartement. À droite, la pièce à vivre de 21m2. Baignée de lumière grâce à son exposition Est, le soleil vient inonder cette pièce en matinée. Un espace de vie fonctionnel et chaleureux.
De l'autre côté de l'appartement, sur cour, côté Ouest, une cuisine spacieuse et fonctionnelle de 12m2, avec un balcon de 6m2, idéal pour le petit café ou lire un bon livre, au calme, et profiter du soleil en après-midi.
Attenantes au balcon, viennent deux belles chambres de 10m2 et 12m2, au calme absolu.
Une salle de bains, un dressing, une buanderie, et un wc complètent ce T3 fonctionnel et efficace.
À noter que ce bien est vendu avec une cave.
Vous êtes à la recherche d'un appartement de type 3 pratique au quotidien, avec toutes les commodités à proximité, offrant le plaisir d'un espace extérieur ensoleillé, le tout dans l'un des secteurs les plus prisés de la cité phocéenne ? Ne cherchez plus, le Café de l'immo l'a trouvé pour vous ! Charges : 196€/mois (ascenseur, eau, chauffage...) Taxe foncière : 1688€
(Honoraires charge vendeur)
Consommation
(énergie primaire)
228
kWh/m2/an
Émissions
39
kg CO2/m2/an *
39
kg CO2/m2/an
