AUTHENTICITÉ ET LUMIÈRE AU ROUCAS
Le Café de l'immo vous emmène au pied du quartier du Roucas, à deux pas de la corniche et de la place du Terrail, visiter cet appartement rare de 123 m2 (110m2 Carrez) au sein d’une ancienne maison d’armateur, aujourd’hui transformée en copropriété
Un véritable bijou, entre authenticité et confort moderne, dans l'un des quartiers les plus recherchés de Marseille.
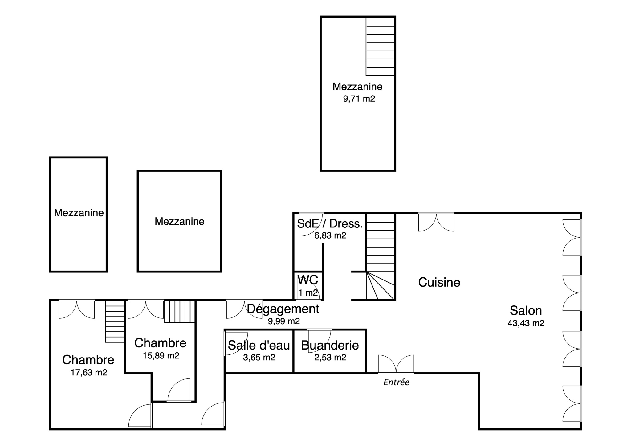
Situé au premier étage, l'appartement se distingue par de très beaux volumes et une hauteur sous plafond exceptionnelle.
L'entrée principale se fait par le vaste séjour de 43m2 avec cuisine ouverte, qui occupe ce qui était autrefois la salle de réception de la maison d'armateur.
Un espace baigné de lumière grâce à quatre grandes fenêtres plein sud, offrant une vue dégagée sur le quartier.
Les murs en pierre d’origine ont été préservés pour plus de cachet.
Côté nuit, le bien est composé de deux chambres de 15m2 et 17m2, chacune équipée d’une mezzanine.
Un espace supplémentaire en mezzanine, donnant sur le séjour, peut également servir de troisième chambre.
Un dressing, une buanderie, un WC séparé, et deux salles d'eau viennent compléter le bien.
Un accès commun à la copropriété permet de profiter du belvédère situé au dernier étage, offrant une vue à 360 degrés sur le Roucas Blanc et la mer.
Idéal pour profiter de beaux couchers de soleil ! Ce bien au cachet indéniable saura séduire ceux en quête d'un lieu de vie hors du commun, alliant calme, caractère et modernité.
Charges : 124€ / mois
Taxe Foncière : 1 557€
(Honoraires charge vendeur)
Consommation
(énergie primaire)
241
kWh/m2/an
Émissions
52
kg CO2/m2/an *
52
kg CO2/m2/an
