L’ÉLÉGANCE À MONTOLIVET
* * * VENDU * * *
Le Café de l’Immo a le plaisir de vous proposer une maison, avec dépendance, à la rénovation singulière sur le secteur Montolivet. Entièrement rénovée avec goût par architecte, la maison d'une surface de 139 m2 au sol est sublimée par sa lumière naturelle, grâce à une sélection rigoureuse de matériaux de qualités.
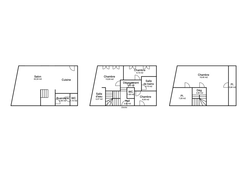
Cette maison individuelle mitoyenne d'un côté, disposée sur trois niveaux, est agencée comme suit :
Passé l'entrée, vous vous trouvez au niveau intermédiaire, soit le coin nuit : une chambre parentale avec salle d'eau privative, une chambre de 9 m2, une salle de bain, un bureau/chambre d'enfant de 6m2.
Au niveau inférieur, la pièce principale, rayonnante grâce à ses ouvertures sur le jardin et une exposition Sud. Profitez des 42 m2 et de sa cuisine ouverte. Une buanderie et un wc se trouvent à ce niveau également. C'est à partir de ce séjour que vous accédez au jardin et à la terrasse. D'un calme absolu, et sans vis-à-vis, cet extérieur de 300 m2 ne peut que vous séduire.
Sous les toits, au dernier niveau, un espace de 45 m2 mansardé est exploité en chambre d'appoint et en pièce de rangement.
Une cerise sur le gâteau, et non des moindres : vous disposez au fond du jardin d'une dependance agencée en studio avec salle d'eau et WC, climatisée, pour une surface de 22 m2. Egalement, attenant au studio, un local de 12 m2 qui à l'avenir pourrait être le local piscine de votre maison, ou un local de stockage, vous n'aurez qu'à choisir.
Vous recherchez une maison coup-de-coeur dans le 12 ème arrondissement avec un bel extérieur digne de ce nom ? N’hésitez plus et venez découvrir ce bien singulier et harmonieux…
À noter : absolument tout le gros œuvre de cette maison est sous garantie décennale ! Façades, planchers, toiture, maçonnerie, électricité et menuiseries (chêne et alluminium) sont de 2023.
Taxe foncière : 901 €
(Honoraires charge vendeur)
Consommation
(énergie primaire)
163
kWh/m2/an
Émissions
5
kg CO2/m2/an *
5
kg CO2/m2/an
