BOMPARD - MAISON DE CARACTÈRE
* * * VENDU * * *
C'est à Bompard que le Café de l'immo vous amène aujourd'hui pour découvrir cette jolie maison de caractère.
Située sur une artère principale du Quartier, elle offre sur 105 m2 un lieu de vie agréable et unique en son genre.
On y entre par des escaliers en pierre donnant le ton. L'extérieur se compose de jardins en restanques, de jolies terrasses et d'annexes on ne peut plus pratiques : cabanons, caves et garage.
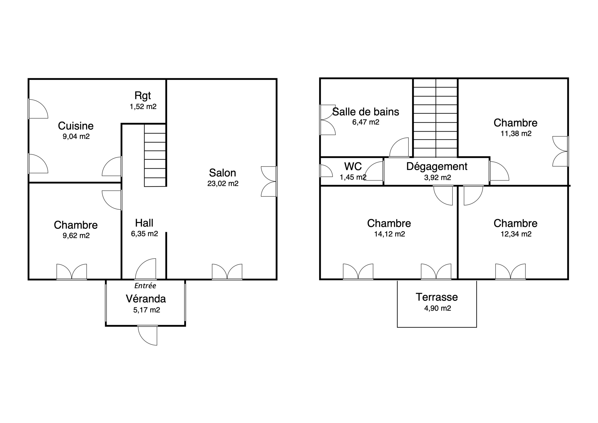
Le rez de chaussée se compose d'une pièce à vivre agréable doublement exposée SUD et EST, d'une cuisine séparée ainsi que d'une première chambre. Le tout pour 50 m2.
L'étage offre quant à lui trois chambres, toutes entre 11 et 14 m2 dont la chambre principale avec sa propre terrasse plein ciel offrant une vue mer merveilleuse; ainsi qu'une grande salle d'eau et un WC séparé.
Vous propfiterez des extérieurs toute l'année : terrasse de plain pied côté rez-de-chaussée, jardin avec bassin japonais pouvant aisément se transformer en piscine, coins plus ombragés côté cuisine...
La maison bénéficie d'espaces de stockage très pratiques grâce a ses caves et son cabanon.
Enfin, vous jouirez d'un garage privé de 24 m2 avec accès direct à la maison.
La maison offre un beau potentiel après rénovation / ré-agencement, le cachet actuel pouvant facilement être conservé ( carreaux ciments, hauteurs sous plafonds).
Maison non mitoyenne.
Taxe foncière: 2540 €.
À découvrir...
(Honoraires charge vendeur)
Consommation
(énergie primaire)
320
kWh/m2/an
Émissions
27
kg CO2/m2/an *
27
kg CO2/m2/an
