UN DUPLEX À SORMIOU
C'est à proximité du Parc National des Calanques que le Café de l'immo vous propose de poser vos valises dans ce très bel appartement calme et baigné de lumière.
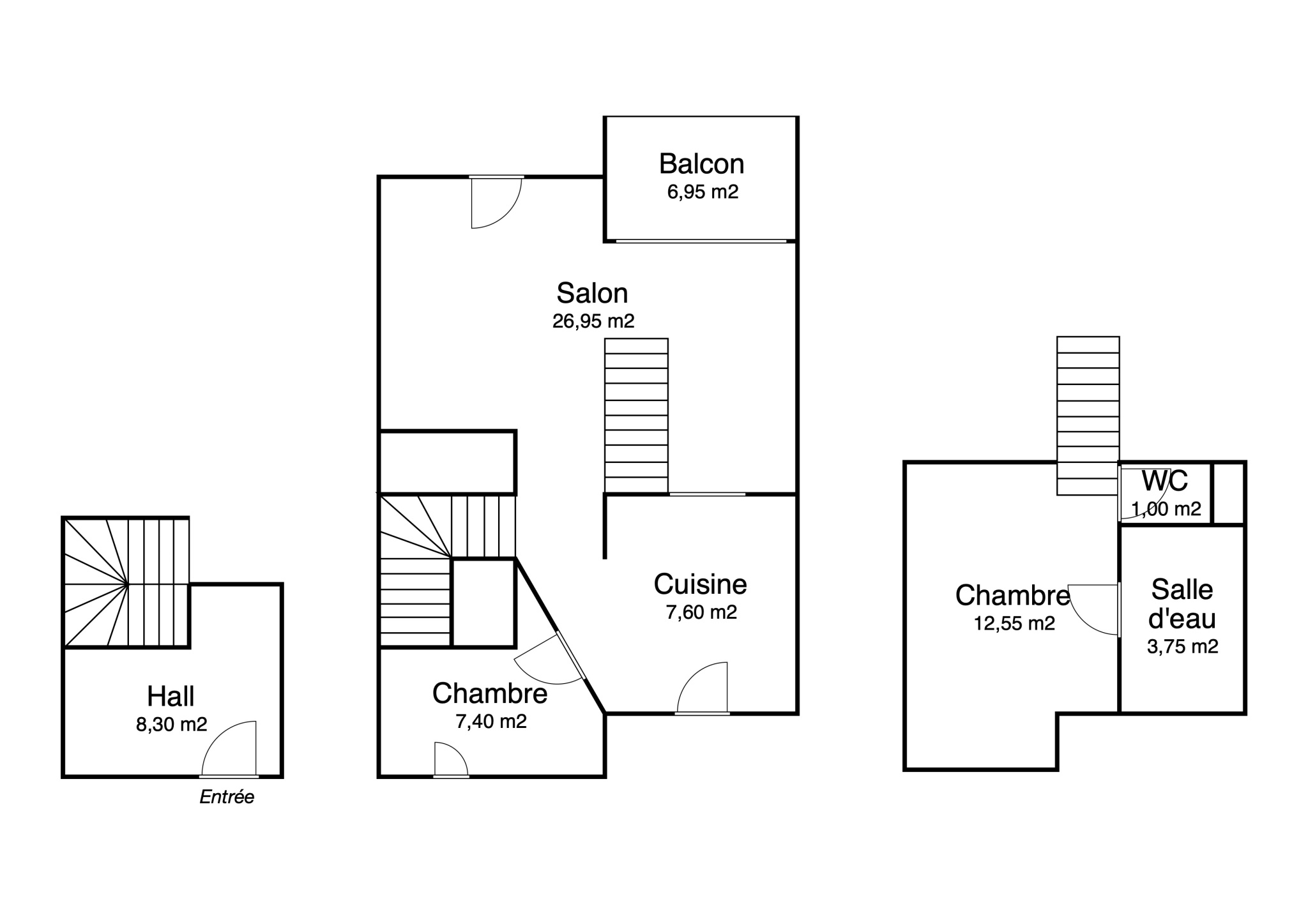
Agencé sur 2 niveaux et d'une superficie de 73m2 habitable ( 60m2 loi Carrez), vous serez immédiatement séduit par son atmosphère chaleureuse. Le 1er niveau se compose d'un très bel espace de vie avec une cheminée à foyer ouvert, apportant un véritable cachet et une ambiance cosy.
Sur ce même niveau, vous disposez d'une cuisine séparée par une verrière sur mesure, bien agencée et fonctionnelle et d'un bureau de plus de 7m2 pouvant égalemet servir de chambre.
À l'étage, vous trouverez un grand espace nuit avec rangements, une salle d'eau et un wc séparé.
Atout majeur de ce joli duplex, un balcon de 7m2 vient parfaire l'ensemble, offrant un extérieur appréciable pour vos moments de détente.
Une cave et une place de parking dans la résidence complètent ce bien.
À visiter sans tarder !
Charges de copropriété : 180 € / mois
Taxe foncière : 1 460 €
(Honoraires charge vendeur)
Consommation
(énergie primaire)
109
kWh/m2/an
Émissions
23
kg CO2/m2/an *
23
kg CO2/m2/an
